LEMON Manuals: Even more car manuals for everyone
Home >> Hummer >> 2008 >> H3 L5-3.7L >> Repair and Diagnosis >> Diagrams >> Electrical Diagrams >> Body Control Systems

Body Control Systems



Body Control System Schematics

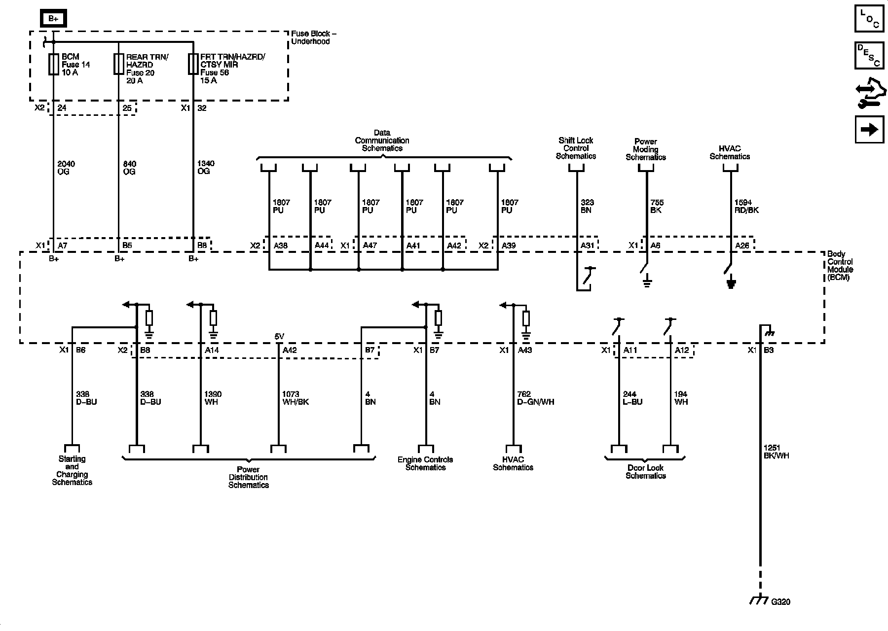
Power, Ground, Serial Data, and Power Moding References





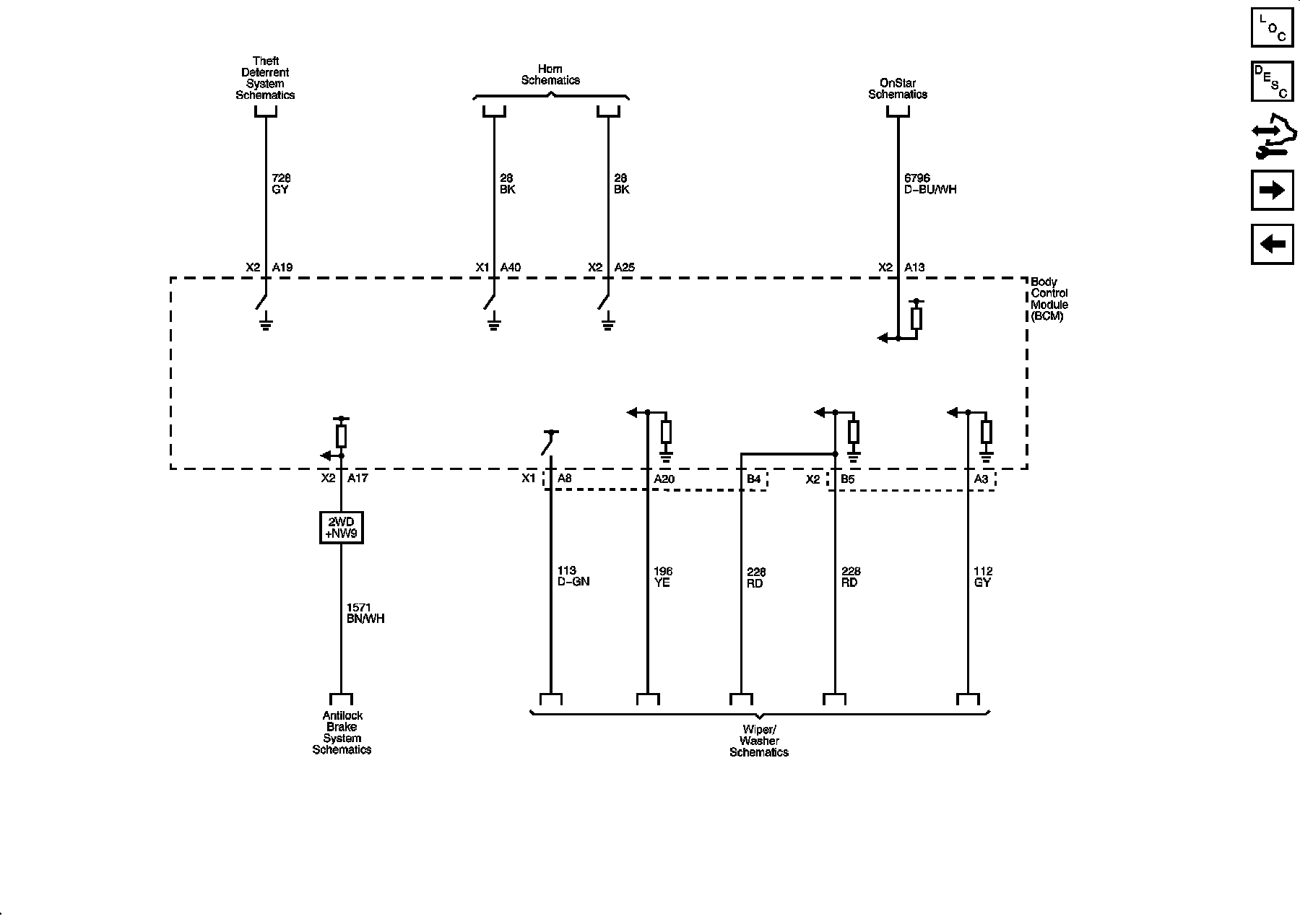
Antilock Brake, Horn, Theft, and Wiper/Washer References





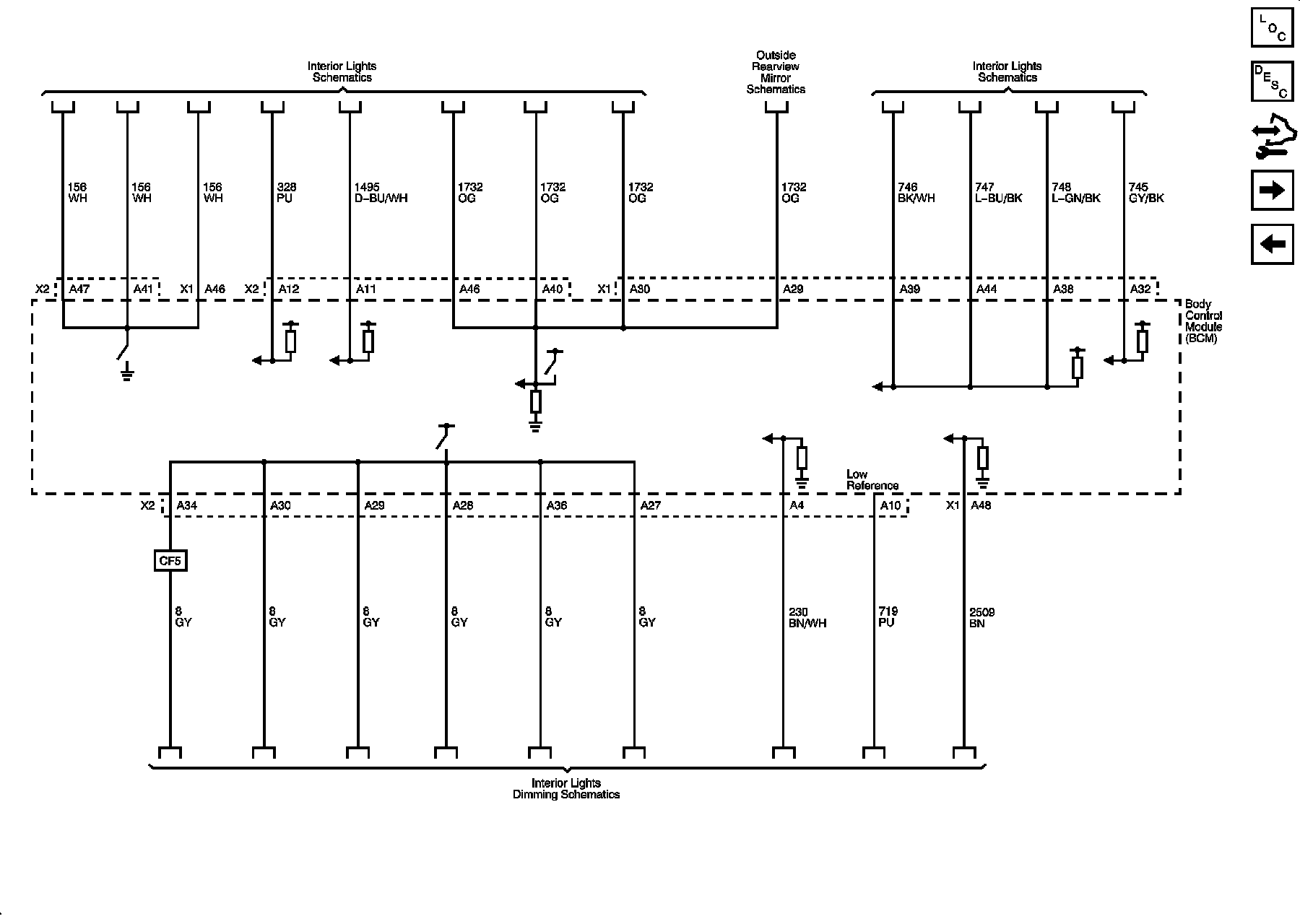
Vehicle Access, Interior Lights, and Interior Lights Dimming References





Exterior Lighting References